MARYSVILLE MIXED USE MASTERPLAN
MARYSVILLE WASHINGTON
CLIENT: P. R. CUBED, LLC
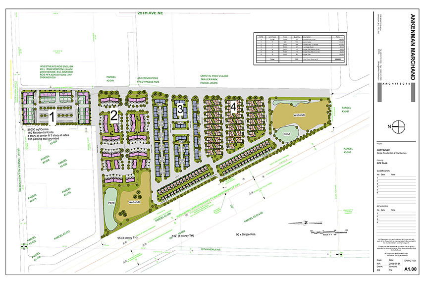
Our firm was engaged to prepare a masterplan for a large parcel of land in the City of Marysville, a small city on the I-5 corridor north of the metropolitan Seattle area. Marysville growth was driven by the expanding local economy as well as addressing the housing needs of a growing and expanding Seattle urban complex.
This large site provided an opportunity to create a significant amount of new commercial space and a variety of new housing forms to serve the growing market. Four separate precincts were created consisting of a mixed use commercial/residential complex, 80 low density townhouses and associated environmental reserve, 100 medium density townhouses and single family homes and associated environmental wetlands.
